SXL X-PROJECT HOUSE
エスバイエル X-PROJECT近未来住宅


1990年エスバイエルは、代々木駅近くの新宿レールシティー展示場にX-PROJECTと名づけた近未来住宅を建設した。

この住宅は二世帯同居の都市型住宅で、エスバイエルのCI導入の一環として、設備機器メーカーなどの協力のもとに建設したものである。おおよそ2〜3年先には実現されるであろう、近い未来を想定したものである。

近未来住宅を開発するにあたり、まず社会構造の変革による人間の意識、価値観、ライフスタイルの変化を把握することにつとめた。

近未来住宅X-PROJECTは、人々が必要性を感じている「ゆとりある、快適な生活」を提案するもので、次の3つの価値感を考えた。

(1)居住手段としての利便性の追求 (2)生活目的そのものを変える新生活様式の提案 (3)スタイル・かたちによる独自性主張

とくに(2)の新生活様式提案を重視しつつ、それらを実現する技術を独自にアメニテック(快適化技術)と名づけ、それをいかに導入するかを検討した。



(1) 半戸外リビング

夕涼みやひなたぼっこなどに使える多目的空間。

大きなガラス張りの半戸外リビング

(2)コミュニケーションいろり

家族の団らんやパーティーに使える120cmX280cmの大テーブルで、油圧によりダイニング形式のイス式テーブルと、堀こたつ形式の座敷テーブルに変化させることができる。

イス式テーブルの状態

座敷テーブルの状態

(3) インテリジェントキッチン

フットスイッチによる自動水栓、生ゴミ処理機、コンピュータによる献立検索など料理支援システム。

(4) タッチレストイレ

センサーによってドアノブ、照明スイッチ、便器などに触れることなく用がたせる。小便器はガラス開口部を兼ねており使用後は自動的に洗浄される。

(5) 健康チェックトイレ

体重、血圧、脈拍、検尿などのデータを表示、記録することができる。

(6) コックピット書斎

机、本棚、照明、冷蔵庫、TV、パソコン、AVが組み込まれたコックピットをイメージしたプライベート多機能スペースで遮音性も確保されている。

(7) フレキシブル間仕切り収納

手動上下ジャッキによるキャスターにより可動できる間仕切り家具。

(8) 瞑想茶室・屋上庭園

屋上庭園を渡ってゆくと小さな和室にたどり着く。お茶室、囲碁、将棋、瞑想空間として利用できる。

(9) 雨センサー付き自動開閉屋根

センサーが雨を感知し自動的に開閉する屋根システム。物干し場、パーティースペースとして利用できる。

(10) 小屋裏回転収納システム

デッドスペースを収納スペースとして利用できる。ボタン操作で必要な収納箱を取り出し口から、取り出すことができる。

(11) 丸太スパ

3〜4人で入れる多機能大型浴槽。浴槽の底には玉石が敷かれ、多目的に利用できる丸太が数本上部に載せられている。24時間いつでも入浴できお湯の入れ替えの必要もない。

また多目的な使用に対応できるよう、浴室と湯上がりヌックの仕切りには、液晶ガラスを使用している。


地階平面図

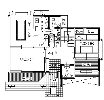
1階平面図

2階平面図

3階平面図


未来住宅へのハイテク技術の受け入れ方


いっぽうハイテク技術の受け入れ方に関しては、京都大学巽和夫教授が、この近未来住宅の開発にあたり、近未来住宅がハイテク機器によって人間性を喪失してしまう恐れがあり、そのための8つのチェック項目を提言している。

(1) 自然の取り込み

自然の力を利用し、自然性を阻害しない技術であるか。

(2) 人間に対する優しさ

高齢者や障害者に対する気配りがなされているか。

(3) 住みごたえ

住みこなしていく楽しみがあるか。

(4)ヒューマニズムへの適合

人間的な要求について、強制や抑圧のない範囲でどこまで応えられるか。

(5) 自動化・情報化に対する選択

手動に切り換えられるなどの柔軟な選択が可能か。

(6) 自然性の確保・増進

人間の創造力を生かすとともに、機能低下を防ぐ配慮がなされているか。

(7) マンマシニンターフェースとしてのヒューマンファクター

勘違いや見間違いなどのヒューマンエラーにも対応しうるか。

(8) 人間が担うべき妥当性

人間の判断や感覚の働きが重要なものは、人間が担うよう仕組まれているか。


この中でハイテク技術の住宅への導入に警鐘を鳴らす多くの人に共通した意見として、ここにも挙げられている機械の導入による人間の機能低下の問題である。しかしそれには別の対策を考えればよいのではないだろうか。

たとえば便利になって動かなくなって、身体がなまるようだったら適度な運動をすればよいのである。雨戸を毎朝開け閉めしたり、階段を昇り降りした方が、お年寄りの運動になっていいと言う人が多い。

しかし身体の調子の悪い時に、しかも寒い外に出て雨戸を開けるのはとても危険なことである。もしそれで身体がなまるようなら、雨戸を開けるのを自動的にやって、身体の調子のいい時に運動した方がよいのだというのが専門家の意見である。

またフランスでJAPONという絵本を見つけたが、その内容は日本の半分現実と未来についてであるが、自動車工場でロボットが自動車を組み立てており、その2階で従業員が一所懸命、エクササイズをしている。

当然、エクササイズしている窓からロボットがやっているところが見えるようになっている。これは自動化による人間の機能低下防止方法を実に見事に象徴している絵本だと思う。


Last modified: Wed May 15 10:22:00 JST 1996
(c) Dr.Shigeaki Iwashita

ホームページに戻る。